- Woonoppervlakte
- Circa 204 m²
- Perceeloppervlakte
- Circa 359 m²
- Bouwjaar
- Gebouwd in 1933
- Aantal kamers
- 8 kamers (7 slaapkamers)
De woning beschikt over een lichte woonkamer met een sfeervolle erker, dichte keuken, hal, 2 badkamers, maar liefst 7 slaapkamers, een dakterras van 77m², ruime garage, een besloten achtertuin en een royale voor- en zij-tuin.
De Achillesstraat is een rustige en kindvriendelijke straat centraal gelegen in de populaire wijk Sportpark. In de nabije omgeving vinden we diverse (basis)scholen, het mooie Wilhelminapark, de winkelcentra Valkeniersplein en De Burcht, evenals het gezellige Ginnekenmarktje met een diversiteit aan winkeltjes en restaurantjes, kinderopvang, sportfaciliteiten, een speelveld en ook de prachtige natuurgebieden aan de zuidkant van Breda zoals het Mastbos, Ulvenhoutse Bos en het Markdal, zijn vanaf deze locatie op korte afstand gelegen. Het historische stadscentrum is binnen enkele fietsminuten bereikbaar en de aansluiting op de diverse uitvalswegen en de zuidelijke rondweg is uitstekend.
Met enige modernisering dient rekening te worden gehouden. Gezien het woonoppervlak, de ligging, het perceel en de prachtige uitstraling van deze majestueuze woning, zijn de mogelijkheden ongekend.
Voor een juiste indruk van deze woning is een bezichtiging van harte aan te bevelen!
Bouwjaar : ca. 1933
Woonoppervlakte : ca. 204m²
Gebouwgebonden buitenruimte : ca. 77m²
Overig inpandige ruimte : ca. 21m²
Inhoud : ca. 719m³
Perceelopp : 359m²
Aanvaarding: in overleg / op korte termijn mogelijk
INDELING
Begane grond:
Overdekte entree/hal (ca. 5.04 x 2.92m) met de trapopgang naar de eerste verdieping, de meterkast (8 groepen), een handige garderobenis en een trapkast. Vanuit de hal is er toegang tot de woonkamer, de keuken en een badkamer voorzien van een royale inloopdouche, toilet en een wastafel.
De woonkamer (7.69 x 5.05/3.81m) beschikt over een gashaard, een sfeervolle erker en biedt middels dubbele openslaande deuren toegang tot de tuin. Door de vele raampartijen kent de woonkamer op ieder moment van de dag een bijzonder fijne lichtinval.
De dichte keuken (ca. 3.80 x 2.61m) in een u-opstelling beschikt over diverse inbouwapparatuur waaronder een 4-pits gaskookplaat, afzuigkap, heteluchtoven, vaatwasser, koelkast met vershoudlade, magnetron, een spoelbak en diverse onder- en bovenkastruimte. Vanuit de keuken is er toegang tot de knusse achtertuin en een gang geeft toegang tot de achtergelegen kamers.
Slaapkamer 1 (ca. 3.60 x 2.90m) is voorzien van een inbouwkast.
Slaapkamer 2 (ca. 3.25 x 2.30m), eveneens voorzien van een inbouwkast.
Slaapkamer 3 (ca. 4.30 x 3.55m) voorzien van een dubbele inbouwkast en een vaste wastafel.
Uiteraard bieden deze kamers een scala aan gebruiksmogelijkheden. Hierbij is het ook zeer denkbaar dat een nieuwe eigenaar deze kamers bij de woonkamer gaat voegen of hier een waanzinnige woonkeuken creëert. Bijvoorbeeld met grote raampartij en diverse schuifpuien richting de achtertuin …
Eerste verdieping:
Overloop met de vaste trapopgang naar de tweede verdieping, een separate toiletruimte en toegang tot 2 royale slaapkamers, een tweede badkamer/wasruimte en het dakterras.
Slaapkamer 4 (ca. 5.12 x 3.45m) is gelegen aan de voorzijde van de woning.
Slaapkamer 5 (ca. 5.01 x 4.02m) is gelegen aan de achterzijde en beschikt over een sfeervolle erker.
De badkamer/wasruimte (ca. 3.72 x 2.59m) is voorzien van een vaste kast, douche, wastafel en tevens vinden we hier de aansluitpunten ten behoeve van de wasapparatuur. Vanuit de kamer is er toegang tot het dakterras.
Het waanzinnige dakterras (ca. 14.07 x 6.51/4.80m) biedt een heerlijk uitzicht over de wijk Sportpark en door de ligging op het zuiden kan hier op ieder moment van de dag tot de late uurtjes heerlijk van de zon worden genoten.
Tweede verdieping:
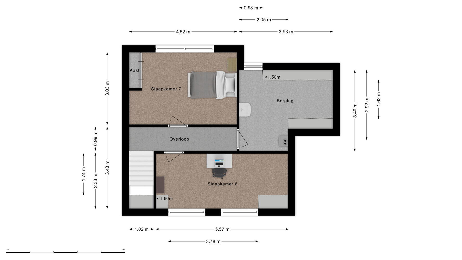
Overloop met toegang tot slaapkamer 6 (ca. 5.57 x 2.33) voorzien van een dakkapel en gelegen aan de voorzijde van de woning, en slaapkamer 7 (ca. 4.52 x 3.03m), voorzien van een vaste kast en gelegen aan de achterzijde.
Bergkamer (ca. 3.93 x 3.40/1.62m) met de opstelling van de c.v. combiketel (Vaillant, ca. 20.12), een dakkapel en een wastafel.
TUIN
Deze hoekwoning is gelegen op een prachtig perceel van maar liefst 359m2 en voorzien van een voor-, een zij- en een achtertuin.
De voortuin (ca. 18.0 x 4.1m) beschikt over een gazon, muurtje, borders met een gevarieerde beplanting en een poort met looppad naar de voordeur.
De royale zij-tuin ( 24.0 x 5.4m) beschikt over een gazon, een volwassen bomenstand en een diverse begroeiing.
De besloten achtertuin (ca. 8.5 x 2.5m) is fluisterstil en door de ligging op zuiden kan hier altijd een plekje in de zon worden gevonden. De tuin is grotendeels betegeld en geeft aan de achterzijde toegang tot de garage.
GARAGE - OPRIT
De royale garage (ca. 5.91 x 3.58m) beschikt over een houten kanteldeur met loopdeur en is voorzien van elektra, daglicht, verwarming en een wasbak.
Voor de garage biedt de eigen oprit nog plaats voor één auto op eigen terrein. Ook een ideale locatie voor een eventuele laadpaal.
BIJZONDERHEDEN
- De woning is prachtig gelegen op een rustige en kindvriendelijke locatie in de wijk Sportpark;
- Met een woonoppervlakte van 204m2 biedt de woning een zee aan ruimte (en mogelijkheden);
- Een moderniseringsronde lijkt onvermijdelijk. Gezien de grootte, ligging en uitstraling, kan deze woning één van de mooiste huizen van Breda worden;
- Waanzinnig dakterras van maar liefst 77m2;
- De besloten achtertuin is ideaal gesitueerd op het zuiden;
- Eigen garage en oprit;
- De woning is voorzien van hardhouten (Merbau) kozijnen. De kozijnen, ondanks dat een verfbeurt weer nodig is, verkeren in een prima staat;
- De woning is geheel voorzien van isolerende beglazing;
- Verwarming en warmwatervoorziening geschiedt middels een eigen gasgestookte c.v. combiketel (Vaillant, ca. 2012). De ketel is in 2024 nog onderhouden.
- Naast een ouderdomsclausule zal er in de koopovereenkomst een niet-zelfbewoningsclausule worden opgenomen.
ALGEMEEN
- Bij een verkoop wordt als basis gebruik gemaakt van het model van de koopovereenkomst, vastgesteld door de Nederlandse Vereniging van Makelaars in onroerende goederen NVM, de Consumentenbond en de Vereniging Eigen Huis. In deze koopovereenkomst wordt standaard de verplichting tot het storten van een waarborgsom of het stellen van een bankgarantie door de koper ter grootte van 10% van de koopsom opgenomen.
- Een koopovereenkomst komt tot stand onder de opschortende voorwaarde dat beide partijen de koopovereenkomst ondertekenen. Partijen kunnen derhalve noch aan een mondelinge overeenkomst, noch aan een schriftelijke bevestiging daarvan, rechten ontlenen.
- Deze vrijblijvende informatie is met de grootste zorg samengesteld, echter aan de inhoud hiervan kunnen geen rechten worden ontleend. Maatvoeringen zijn slechts indicatief en kunnen afwijken van de werkelijke situatie en zijn uitsluitend bedoeld om een indruk te geven van de indeling. Aan deze informatie kunnen geen rechten worden ontleend.
Overdracht
- Vraagprijs
- € 750.000 k.k.
- Status
- Onder bod
- Aanvaarding
- In overleg (op korte termijn mogelijk)
Bouw
- Object type
- Eengezinswoning, hoekwoning
- Soort bouw
- Bestaande bouw
- Bouwjaar
- 1933
- Soort dak
- Zadeldak bedekt met pannen
Oppervlakte en inhoud
- Woonoppervlakte
- 204 m²
- Perceeloppervlakte
- 359 m²
- Inhoud
- 719 m³
- Overige inpandige ruimte
- 21 m²
- Gebouwgeb. buitenruimte
- 77 m²
Indeling
- Aantal kamers
- 8 kamers (7 slaapkamers)
- Aantal badkamers
- 2 badkamers
- Badkamervoorzieningen
- Toilet, douche, wastafel douche, wastafel, wasmachineaansluiting
- Aantal woonlagen
- 3 woonlagen
- Voorzieningen
- Tv-kabel, dakraam
Energie
- Energielabel
- E
- Energielabel registratie
- 03-09-2025
- Isolatie
- Dubbel glas
- Verwarming
- Cv-ketel
- Warm water
- Cv-ketel
- Cv ketel
- Vaillant combiketel gas gestookt uit 2012 (eigendom)
Buitenruimte
- Ligging
- Aan rustige weg, in woonwijk
- Balkon / dakterras
- Dakterras
- Tuin
- Achtertuin, voortuin, zijtuin
- ligging tuin
- Gelegen op het westen en
Garage
- Soort garage
- Aangebouwd steen
- Capaciteit
- 1 auto
- Voorzieningen
- Verwarming, elektra, stromend water
- Isolatie
- Geen isolatie
Parkeergelegenheid
- Soort parkeergelegenheid
- Openbaar parkeren, op eigen terrein
Energieverbruik in Breda
Energielabel deze woning
Energielabel E
Publicatie energielabel: 03-09-2025
Stroomverbruik per jaar
(Gemiddelde hoekwoning in Breda)
Gasverbruik per jaar
(Gemiddelde hoekwoning in Breda)
* Cijfers zijn afkomstig van het CBS en bedoeld als indicatie en kunnen verschillen voor deze woning
Indicatie hypotheeklasten
Eigen inleg:
Spaargeld / overwaarde
Rente:
Laagste 10-jaars rente
Laagste 10-jaars rente
2,75% - Centraal Beheer Groen... - NHG
3,05% - Centraal Beheer Groen... - 80%
Laagste 20-jaars rente
3,23% - Argenta Groen Hypothee... - NHG
3,44% - Argenta Groen Hypothee... - 80%
Laagste 30-jaars rente
3,4% - Argenta Groen Hypotheek... - NHG
3,61% - Argenta Groen Hypothee... - 80%
Hypotheek:
Bruto maandlasten: € 0 p/m
Netto maandlasten: € 0 p/m
Hoe berekenen we dit?
Het rentepercentage is gebaseerd op de laagste 10-jaars vaste rente voor één hypotheekdeel. De vermelde rente (3.05% zonder NHG) is gecontroleerd op 23-10-2025. Deze berekening is gebaseerd op een annuïteitenhypotheek die volledig wordt afgelost, waarbij de maandlasten gedurende de gehele looptijd gelijk blijven. De werkelijke rente en netto maandlasten kunnen variëren, afhankelijk van uw persoonlijke situatie en de hypotheekverstrekker. Raadpleeg een financieel adviseur voor een nauwkeurige berekening en advies. Aan deze berekening kunnen geen rechten worden ontleend; het dient enkel als indicatie.
Documentatie
Kadastrale kaart
Leefomgeving
Plattegronden PDF
BAG uittreksel
Lijstvanzaken-4922
Vragenlijstb-4922
Energielabel-achillestraat
Brochure
Bezoek onze website
Bezichtiging
Bod uitbrengen
Waardebepaling
Zoekopdracht
Alles downloaden
Zonnegrenzen bekijken
Op de kaart
Inwoners in Breda
Cijfers voor postcodegebied 4818
- Totaal aantal inwoners
- 9045 inwoners
- Mannen
- 48%
- Vrouwen
- 52%
Inwoners in Breda
Cijfers voor postcodegebied 4818
- tot 15 jaar
- 17%
- 15 tot 25 jaar
- 15%
- 25 tot 35 jaar
- 23%
- 45 tot 65 jaar
- 27%
- 65 en ouder
- 17%
Huishoudens in Breda
Cijfers voor postcodegebied 4818
- Eenpersoons zonder kinderen
- 42%
- Meerpersoons zonder kinderen
- 26%
- Huishoudens zonder kinderen
- 68%
Huishoudens in Breda
Cijfers voor postcodegebied 4818
- Huishoudens met één kind
- 6%
- Huishoudens met meerdere kinderen
- 25%
- Huishoudens met kinderen
- 31%
Woningen in Breda
Cijfers voor postcodegebied 4818
- Woningen voor 1945
- 62%
- Woningen tussen 1945 en 1965
- 12%
- Woningen tussen 1965 en 1975
- 1%
- Woningen tussen 1975 en 1985
- 1%
- Woningen tussen 1985 en 1995
- 5%
Woningen in Breda
Cijfers voor postcodegebied 4818
- Woningen tussen 1995 en 2005
- 9%
- Woningen tussen 2005 en 2015
- 9%
- Woningen na 2015
- 1%
- Huurwoningen
- 30%
- Koopwoningen
- 70%
Overige in Breda
Cijfers voor postcodegebied 4818
- Gemiddelde WOZ waarde
- € 425.000,-
- Personen onder de 65 met uitkering
- 3%
Overige in Breda
Cijfers voor postcodegebied 4818
- Adressen per km²
- 3042
- Stedelijkheid (schaal 1 op 5)
- 100%
Korte feiten over Breda
Breda is een Nederlandse stad in het westen van de provincie Noord-Brabant. Breda is van oudsher de voornaamste stad van West-Brabant. Het was de hoofdstad van de Baronie van Breda, waaronder onder meer ook Roosendaal, Etten-Leur en Oosterhout ressorteerden. De stad zelf is de kern van de gelijknamige gemeente, die per 31 januari 2022 184.716 inwoners telde, en daarmee in grootte de derde gemeente van Noord-Brabant is en de negende gemeente van Nederland. De inwoners worden Bredanaren of Bredanaars genoemd.
MB Makelaars
Indien u vragen heeft of u wilt een bezichtiging inplannen, dan kunt u gebruik maken van het formulier hiernaast. Er zal daarna op korte termijn contact met u worden opgenomen.
Contact opnemen
Hét makelaarskantoor van Breda!
MB Makelaars: een jong, enthousiast, creatief team met een passie voor woningen.
Sinds onze oprichting in 2015, is MB Makelaars uitgegroeid tot een prominente speler binnen de makelaardij in Breda. Als een jong makelaarskantoor, mag u van ons verwachten dat we net dat extra stapje zetten, en uiteraard ook 's avonds en in het weekend voor u klaarstaan. Als full-service NVM-kantoor begeleiden wij het volledige verkoopproces van A tot Z, zodat u volledig ontzorgd wordt.
Ons team en hoge klantbeoordelingen
MB Makelaars bestaat uit een klein, jong, creatief en gedreven team. Martijn, Sietske, Mike en Madelief vormen een perfecte aanvulling op elkaar en delen dezelfde passie. Dit uitstekende team zet zich volledig in voor de zaak, wat terug te zien is in zowel de resultaten die we behalen voor onze klanten bij aankoop- en verkoopbegeleiding, als in onze klantbeoordelingen. Met een gemiddelde score van 9.8 op Funda heeft MB Makelaars de hoogste klanttevredenheid in de regio Breda - iets waar we met trots op terugkijken.
Nieuwste reviews
-
Koninginnestraat 49
Prettig contact, goede strategie en fantastische advertentiefoto's & teksten, met als resultaat een een mooi bod en snelle verkoop. Zonder M...
-
Mimosastraat 1
Met het advies van MB Makelaars heb ik een passend bod uitgebracht en hiermee mijn droomwoning kunnen aankopen.
-
Een funda gebruiker
Martijn heeft mij uitstekend geholpen bij het vinden van een geschikte woning. Tijdens alle fasen van het aankoopproces werd ik volledig ont...